0

ABB IRB1600 Flexarc M2004 IRC5 su guida lienare e due posizionatori IRBP 2000L

In attesa di ulteriori scorte
Book a meeting

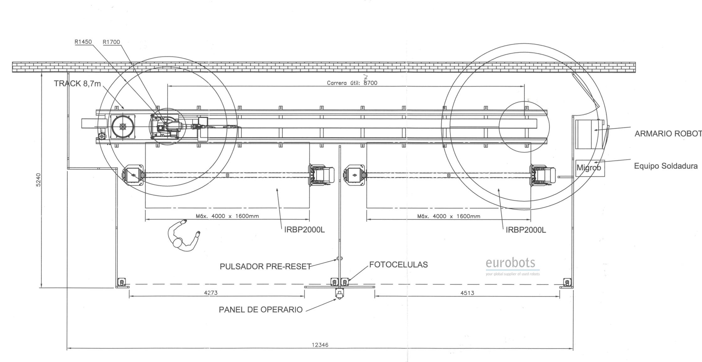
Anno 2008, cella di saldatura Flexarc originale a 9 assi ABB composta da:

- 1 x IRB1600 M2004 robot a 6 assi con controller IRC5, braccio di 1,45 m di lunghezza e 6 kg di carico utile.

- 1 x pista lineare servocontrollata - 7 ° asse, mozzo di 8,7 metri

- 2 posizionatori di saldatura IRBP 2000L lungo il binario lineare, servocomandati, carico utile 2000 kg e 4 m tra testa e contropunta

- 1 x ESAB Migrob 5000 - 500 Ampere - generatore di saldatura ad arco con alimentatore di filo, torcia di saldatura PKI 500 e anticollisione TSC

- 1 sistema di correzione della torcia per occhio di bue

- Stazione di pulizia della torcia

- Sistema completamente integrato con il sistema IRC5 tramite il software ABB Arcware

- Barriere fotoelettriche di sicurezza e pannello operatore


Applicazioni

Saldatura ad arco

Diagrammi